Locale commerciale a reddito in Via Giuseppe Sciuti - alta Visibilità


Palermo | 355.000,00 | Mq 165 | 1 | | 1

Description

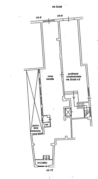
Proponiamo in vendita, in Via Giuseppe Sciuti, a pochi passi da Via Notarbartolo, un ampio locale commerciale di circa 165 mq, oltre spazio esterno (pozzo luce) ad uso esclusivo.
L’immobile gode di doppia esposizione, con vetrine su Via Giuseppe Sciuti e affaccio su Piazza Matteo Maria Boiardo, garantendo ottima visibilità e luminosità.
Attualmente locato a nota attività nel settore della valigeria e pelletteria, presente nella zona da oltre 25 anni, con contratto di locazione attivo e canone in linea con i valori di mercato.
Soluzione ideale per investimento a reddito, in una delle zone commerciali più richieste della città

Details

  • Code: A041/26
  • Tipology: Store
  • Municipality: Palermo
  • Number of rooms: 1
  • Number of bedrooms:
  • Number of bathrooms: 1
  • Garage:
  • Sqm: 165
  • Annual condo fees €:
  • Furniture:
  • Floor:
  • Heating: Indipendent
  • Year of construction:
  • Conservation: Good
  • Charateristics

    Energy efficiency

    classe energetica

    Prestazione energetica del fabbricato inverno estate

    Via Giuseppe Sciuti 8 Palermo

    Further information

    091.7828123 - 091.332280

    Pursuant to and for the purposes of articles 13 and 6 of EU Regulation 2016/679, I declare that I have read the information from Punto Casa di Claudio Costantino for the processing of personal data.

    Via Vann' Antò 4 - Palermo - Tel. 091.7828123 - 091.332280


    Locale commerciale a reddito in Via Giuseppe Sciuti - alta Visibilità

    Palermo | 355.000,00 | Mq 165 | 1 | | 1 | RIF A041/26

    Via Giuseppe Sciuti 8 - Palermo - Notarbartolo

    Proponiamo in vendita, in Via Giuseppe Sciuti, a pochi passi da Via Notarbartolo, un ampio locale commerciale di circa 165 mq, oltre spazio esterno (pozzo luce) ad uso esclusivo.
    L’immobile gode di doppia esposizione, con vetrine su Via Giuseppe Sciuti e affaccio su Piazza Matteo Maria Boiardo, garantendo ottima visibilità e luminosità.
    Attualmente locato a nota attività nel settore della valigeria e pelletteria, presente nella zona da oltre 25 anni, con contratto di locazione attivo e canone in linea con i valori di mercato.
    Soluzione ideale per investimento a reddito, in una delle zone commerciali più richieste della città

    Efficienza energetica
    Prestazione energetica del fabbricato inverno estate